Lo stile costruttivo delle Ville del Golfo è quello tipico gallurese nella sua forma più attuale, dove la classica abitazione della zona abbraccia armoniosamente concetti più contemporanei con particolare attenzione all’abitabilità, per un connubio perfetto fra tradizione, eleganza e fruibilità.
I generosi spazi interni ed esterni infatti, impreziositi dai particolari costruttivi che richiamano la tipicità dell’Isola ed i suoi materiali naturali come il granito ed il legno a vista, si adattano perfettamente alle forme moderne e lineari che caratterizzano questo prestigioso intervento.
Il complesso è ubicato in posizione strategica e dominante che si affaccia sulla magnifica vallata che abbraccia tutta la spiaggia “La Cinta” e si trova a pochi minuti dalle più belle spiagge a sud di Olbia come Lu Impostu e Cala Brandinchi, a soli 4 km dalla rinomata località di Puntaldia con la sua marina e tutti i suoi negozi.
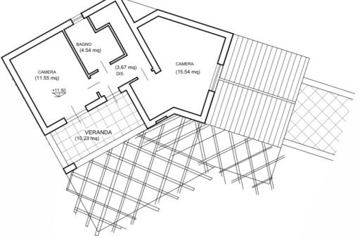
L' unità 4 consiste in una prestigiosa villa singola con piscina privata e splendida vista mare, sviluppata su tre livelli e libera su quattro lati. Al piano terra, la zona giorno è composta da spazioso soggiorno-pranzo con accesso alla veranda di ampio respiro panoramico, cucina separata, bagno comune ed una camera matrimoniale.
Al piano superiore, si trovano due camere matrimoniali di cui una con veranda, bagno e disimpegno.
Un luogo di pace e armonia, un rifugio esclusivo e silenzioso, connubio perfetto tra tradizione e innovazione.
Via San Francesco n.9
07052 San Teodoro (SS)
Tel: +39 0784 851070
E-mail: info@centocasesardegna.it

Centocase Sardegna San Teodoro
s.teodoro@centocasesardegna.it