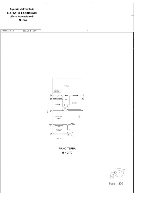
Die Wohnung Nr. 3 befindet sich im Erdgeschoss einer ruhigen und gepflegten Wohnanlage in zentraler Lage in Budoni, nur wenige Gehminuten von den schönen Stränden und allen Dienstleistungen der Stadt entfernt.
Das Haus besteht aus einem Wohnzimmer mit Kochnische, zwei sehr großen Doppelzimmern, von denen eines direkten Zugang zum hinteren Garten hat, einem privaten Raum, der perfekt zum Entspannen im Freien ist.
Die Immobilie wird durch ein Badezimmer mit Fenster, eine Terrasse am Eingang, die ideal für Mahlzeiten im Freien ist, und einen Keller mit eigenem Eingang, der sich hervorragend als Abstellraum oder Mehrzweckraum eignet, vervollständigt.
Die Wohnung ist mit einem Induktionskochfeld und einer Wärmepumpe ausgestattet, die das ganze Jahr über für Komfort und Funktionalität sorgt.
Budoni, ein beliebter Ort an der Nordostküste Sardiniens, bietet traumhafte Strände, ein einladendes und lebhaftes Zentrum und alle Dienstleistungen in unmittelbarer Nähe, so dass er sich sowohl für den Urlaub als auch für das ganzjährige Wohnen eignet.
Die Wohnung Nr. 3 ist die ideale Lösung für alle, die ein komfortables, funktionales Zuhause mit privatem Außenbereich suchen.
Es besteht die Möglichkeit, eine Tiefgarage zu erwerben, die als Autoabstellplatz oder Lagerraum genutzt werden kann Preis € 30.000.
Via San Francesco n.9
07052 San Teodoro (SS)
Tel: +39 0784 851070
E-mail: info@centocasesardegna.it

Centocase Sardegna San Teodoro
s.teodoro@centocasesardegna.it