Im herrlichen Ferienort La Caletta, einem kleinen Dorf, das für seinen goldenen Sandstrand und das türkisfarbene Meer bekannt ist, bieten wir Ihnen eine elegante Doppelhaushälfte, die die perfekte Kombination aus Komfort, Raffinesse und einer privilegierten Lage nur wenige Minuten vom Meer und den Dienstleistungen der Gegend entfernt darstellt.
Diese Doppelhaushälfte bietet gemütliche, gut verteilte Räume, die so gestaltet sind, dass sie maximalen Komfort und Privatsphäre garantieren.
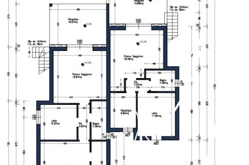
Ein großer Wohn- und Essbereich mit Kochnische, ein helles und gut organisiertes Ambiente, ideal für gesellige Momente, ein bequemer Flur führt zum Schlafbereich, bestehend aus einem Doppelzimmer mit kleinem Balkon, einem Einzelzimmer, ideal für Gäste oder Kinder, einem dritten Schlafzimmer mit Brückenbett und schließlich einem modernen Badezimmer mit Dusche, ausgestattet mit hochwertigen Oberflächen.
Das Haus wird durch eine schöne Veranda mit einer Pergola bereichert, ideal für Mahlzeiten im Freien, wo man die Meeresbrise und die Ruhe des Ortes genießen kann.
Der Privatparkplatz garantiert Komfort und Sicherheit, während die steinerne Auffahrt elegant zum Eingang des Hauses führt und die Außentreppe zum Panorama-Solarium führt, das sich ideal zum Sonnenbaden oder als ausgestatteter Bereich eignet.
Der große Garten ist ideal für Momente der Entspannung im Freien, mit der Möglichkeit, einen privaten Swimmingpool zu schaffen.
Ausstattung: Prädisposition Klima in allen Räumen, Prädisposition Photovoltaik, Wasserreserve mit Autoklav, Außendusche und Abstellraum unter der Treppe;
Außenverkleidung in sardischem PiEtra und sichtbaren Holzbalken.
Möglichkeit der individuellen Gestaltung von Böden und Wänden.
All dies macht diese Residenz eine unübersehbare Gelegenheit für diejenigen, die einen exklusiven Wohnsitz nur einen Steinwurf vom Meer entfernt und eine sichere Investition in einem der renommiertesten Küstendörfer von Baronia und der sardischen Ostküste wollen.
Ein Stück vom Paradies erwartet Sie in La Caletta!
Via San Francesco n.9
07052 San Teodoro (SS)
Tel: +39 0784 851070
E-mail: info@centocasesardegna.it

Centocase Sardegna San Teodoro
s.teodoro@centocasesardegna.it