Große Villa im Bau mit privatem Swimmingpool liegt in einer ruhigen Wohnlage, wenige Minuten vom Stadt Zentrum entfernt und bestehend aus:
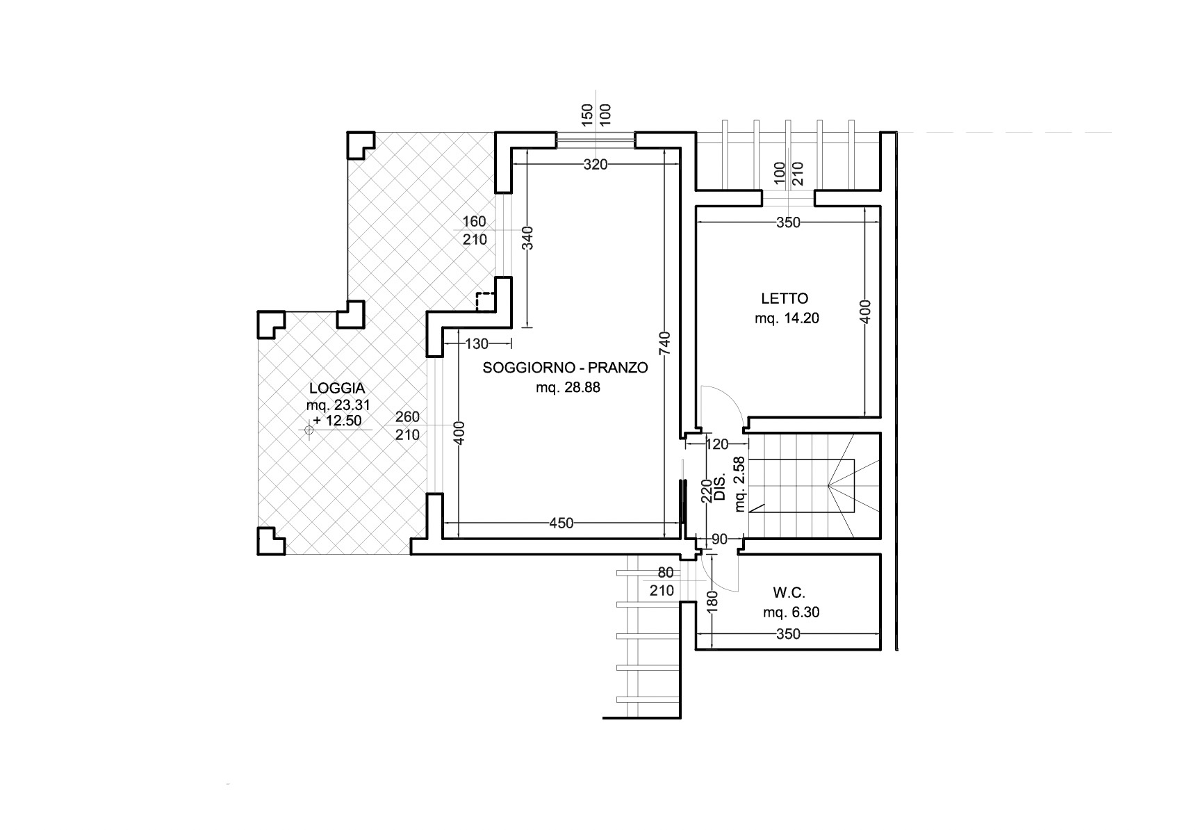
Erdgeschoss
Geräumiges Wohnzimmer mit Küche, Hauptschlafzimmer, Badezimmer und Veranda mit Panoramablick auf den Garten und Swimmingpool.
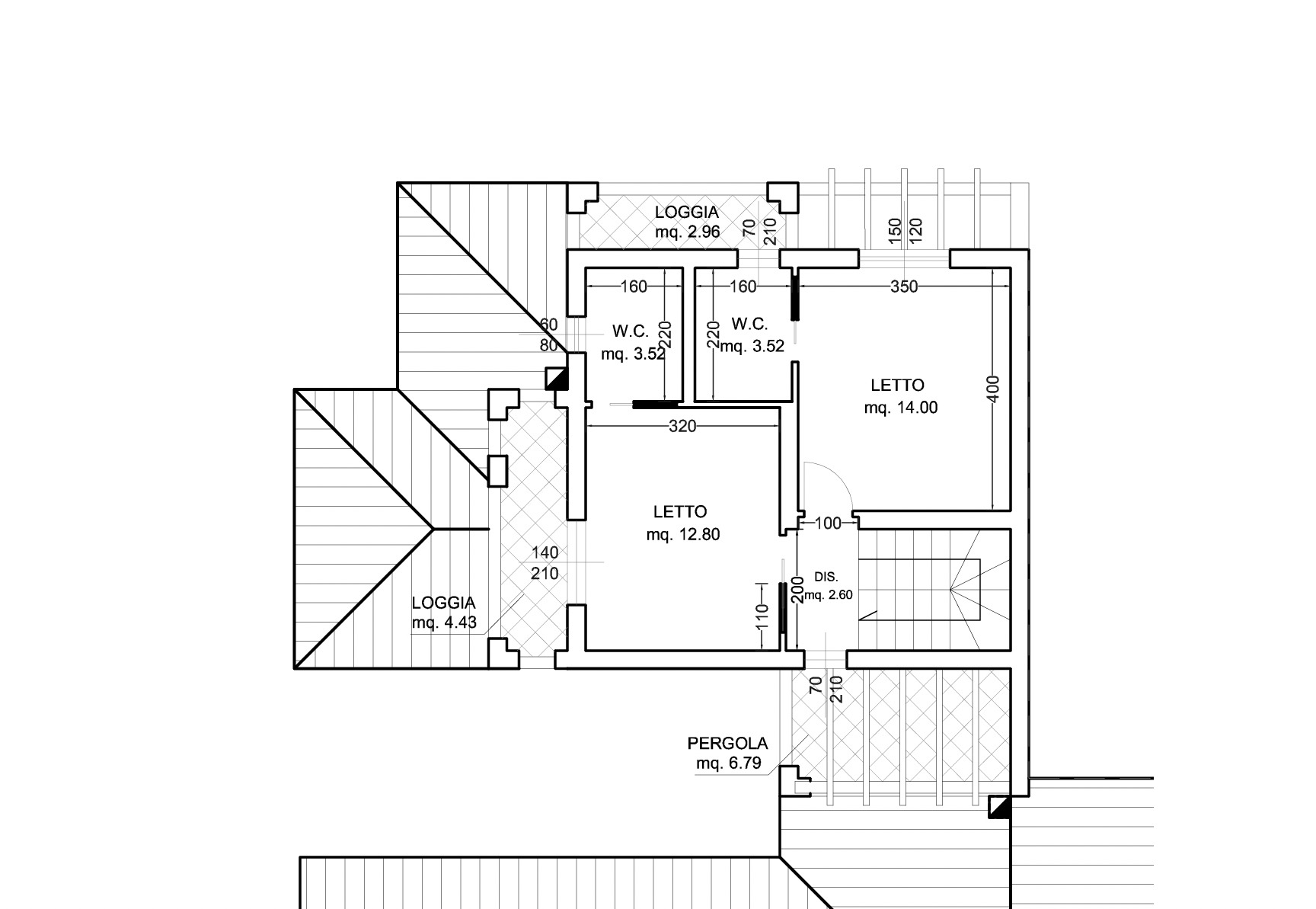
Obergeschoss
Zwei Hauptschlafzimmer, jeder mit privatem Badezimmer und privater Veranda, überdachte Terrasse mit Holzlaube.
Top Baumaterialen.
Via San Francesco n.9
07052 San Teodoro (SS)
Tel: +39 0784 851070
E-mail: info@centocasesardegna.it

Centocase Sardegna San Teodoro
s.teodoro@centocasesardegna.it